
Populære alternativer
Populære merker innen Lampe og belysning
Prishistorikk
Prisvarsel
Meld deg opp til prisvarsel og få beskjed med en gang prisen synker.
kr
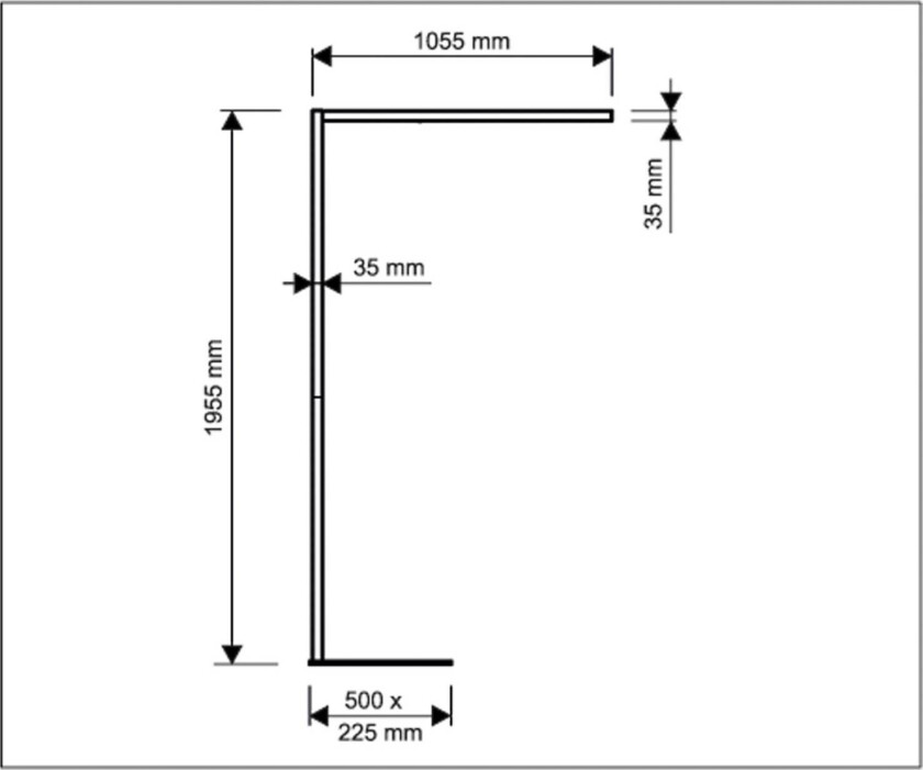
Egenskaper og detaljer
Generelt
Type lampe
Gulvlampe
Bruksområde
Innendørs
Strekkoder
GTIN
4002390087254








